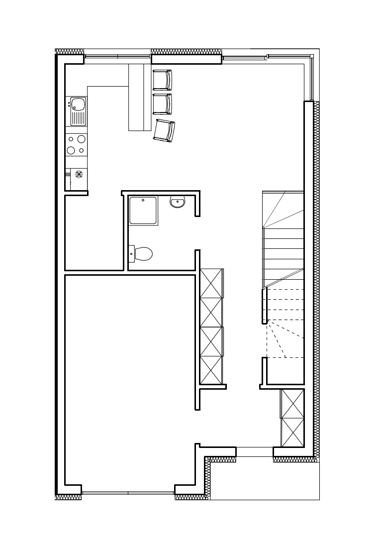
PARTER

 

Na parterze znajduje się duży garaż z bezpośrednim wejściem do wiatrołapu. Ten poziom to połączenie przestrzeni z ergonomią i praktycznym układem pomieszczeń. Wielki salon mocno doświetlony przez duże rogowe okno - które jest jednocześnie wyjściem na obszerny taras - połączony z praktyczną kuchnią. Udało nam się jednocześnie wygospodarować przestrzeń na wygodną łazienkę, pomieszczenie gospodarcze oraz wnęki na praktyczne szafy do zabudowy.